top of page

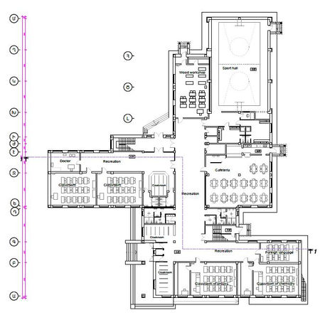
A new secondary school in Shirak region

A new secondary school for 360 children

Area

2720 sqm

Built

Status

Year

2011

Галерея проектов

  • Facebook
  • Instagram
  • Linkedin

2023 © Все права защищены

bottom of page